Hendren Township Church History, Clark Co., WI
 

 

Holy Family Catholic Church

Willard, Hendren Township, Clark County, Wisconsin

 

 

Holy Family Catholic Church (2003)

 

Breaking Ground for New Church

Willard, Hendren Twp., Clark Co., Wisconsin

 

Willard - with more than half the funds already raised, Holy Family parishioners witnessed ground-breaking rites Sunday, April 30, for a new $132,379 church and parish center. 

 

The 125 - family parish decided to start a building fund in 1960 and voted in October of 1965 to build the structure now underway. Construction is expected to be completed this year.  

 

Working with Bishop F. W. Freking and with the pastor, Father William V. Nikolai, the parish building committee made long and serious studies for this project.


The building committee includes: Frank L. Govek, trustee; Val Krainz, Sr.; trustee; William Bayuk, Julius Klapatauskas, Sr., Henry Lamovec, Sr.; John F. Trunkel, Sr., Frank Volsek, Jr.

 

Much credit must go to these laymen for their hard decisions, serious planning and interest in their parish over the past three years in many meetings,” Father Nikolai said.

 

The firm of Carl Billmeyer and Son, Wisconsin Rapids, was nired as the artchitectural firm in 1965. Bids were let in February of 1967 and opened at a meeting of the Building Committee on the evening of March 16.

 

Bishop Freking and Father Nikolai were also present with the architect for this occasion. Bids were accepted and contracts were negotiated.


At a meeting of the building committee on April 20, all the men of the building committee signed the contracts in the presence of the architect and pastor.

The pastor also signed as vice president and the Parish Corporation and contracts were subsequently signed by the Most Rev. Freking, Bishop of the Diocese of La Crosse and President of the Holy Family Parish Corporation.

 

Receiving contracts for the new church and center were: general construction - Ellis Stone Construction Company of Stevens Point $108, 506; plumbing, heating and ventilation - Hurlburt Heating Company, Inc. of Durand, $15,223; electrical contract - Peroshek Electric of Greenwood, $8,650; a total of $132, 379.

 

Parishioners collected a total of nearly $69,000 since they began the fund in 1960.

 

The new construction will be erected on a site just across from the present rectory to the south and southeast of the present church structure. The property was purchased already in 1924.

 

The present church is the original frame church built in 1912. The new structure will be of concrete block with modulated buff brick veneer.

 

The church will seat 300 adults and is designed to serve all requirements of modern liturgical practices and is in modern contemporary style. The building will have a double entrance surrounding the baptistery, and will be entered from the south.


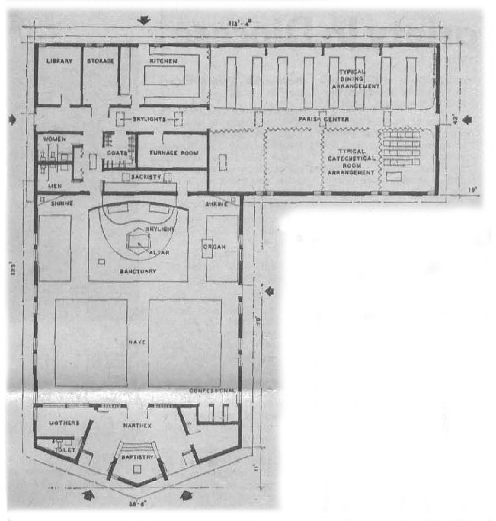
On the north end of the building there will be a wing extending to the east, with a modern kitchen, cloak rooms, storage, library-conference room and parish center.

 

This center will be for catechetical work, of eight classrooms, divided by movable walls of fabric construction, which can be stacked so that the room can serve for meetings and dinners, to seat from 225 to 250 adults.

 

Most of the construction will be completed by the end of 1967. All construction will be on one floor, with no basement.

 

 

Blueprint and Groundbreaking Photos on Page 12.

 

Father William V. Nikolai (below) turns spadeful of ground in ceremonies marking construction of their new church by members of Holy Family Parish, Willard. Interested onlookers are members of the parish building committee.

 

Above is copy of blueprint of the new parish plant, showing arrangement of sanctuary and nave, and the baptistery at the entrance (lower left); the service section, upper left; and the parish center. Note that the parish center can be divided into eight classrooms for catechetical instructions classes. When the movable walls are stacked, the center will seat 250 persons for meetings and dinners. The new church will replace the original frame building dating from 1912. See story and picture on page 1.

 

 

1967 Burning the old Church

 

1967 Artist's Sketch

of the new Church

 

Floor Plan for the new Church

 

 

The Ground Breaking Ceremony

 

Contributed by Mary Urban; prepared by Crystal Wendt & Pat Phillips

 

Events

 

1934

 

Card Parties

100th Anniversary

 

1949

 

1949, Refugees Sponsored by Holy Family Parish

 

1987

 

1987, Willard Parish celebrates 'Vinska Trgatev'

 

 

 

 

 


© Every submission is protected by the Digital Millennium Copyright Act of 1998.

 

Show your appreciation of this freely provided information by not copying it to any other site without our permission.

 

Become a Clark County History Buff

 

Report Broken Links

A site created and maintained by the Clark County History Buffs
and supported by your generous donations.

 

Webmasters: Leon Konieczny, Tanya Paschke,

Janet & Stan Schwarze, James W. Sternitzky,

Crystal Wendt & Al Wessel

 

CLARK CO. WI HISTORY HOME PAGE